國內關于好氧顆粒污泥的研究大多是在較高有機負荷的人工配水下進行. 然而,用高 COD濃度的人工配水培養成熟的好氧顆粒污泥在應用到我國實際生活污水時,由于進水有機負荷的降低,會抑制 EPS 分泌,導致顆粒污泥穩定性降低.而后,有研究者用較低 COD 濃度的人工配水模擬我國實際生活污水培養好氧顆粒污泥,由于人工配水系統與實際生活污水系統存在著很大的差異,故其處理實際生活污水時會出現絲狀菌膨脹、顆粒污泥解體的情況. 近年來,有研究者采用實際生活污水啟動好氧顆粒污泥工藝,但研究只針對好氧顆粒污泥的啟動,并沒有對其運行穩定性進行探究.
基于此,本實驗采用兩組 SBR 反應器( R1、 R2) ,通過控制相同的曝氣量、運行時間等因素,在 R1、R2 反應器中接種污水處理廠回流污泥,分別以人工配水和實際生活污水為進水,以進一步明晰水質條件對好氧顆粒污泥啟動的影響; 啟動成功后穩定運行時,研究溫度變化對顆粒穩定性及同步去除碳、氮、磷性能的影響,以期為好氧顆粒污泥工藝運用于實際生活污水提供理論基礎.
1 材料與方法
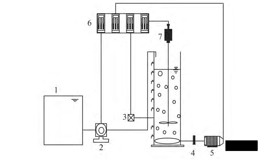
1. 1 實驗裝置與運行方式
本實驗采用兩組 SBR 反應器( R1、R2 ) ,反應器高徑比均為 3∶ 1,有效容積為 18 L. 反應器材料為有機玻璃,頂部進水,通過時控開關控制進水、攪拌、曝氣、出水. 用鼓風機進行底部曝氣,用轉子流量計控制曝氣流量.

1. 進水箱; 2. 蠕動泵; 3. 出水; 4. 氣體流量計; 5. 鼓風機 6. 進水、出水、攪拌、曝氣時序控制器; 7. 攪拌機
圖 1 SBR 反應器裝置示意
反應器每天運行 4 個周期,每個周期 6 h,分為: 進水 10 min,厭氧 80 min,好氧 210 min,沉淀 ( 30 ~ 3) min( 沉淀時間在顆粒培養階段逐漸由 30min 遞減至 3 min,顆粒成熟之后保持 3 min) ,排水 10 min,剩余時間閑置,反應器換水比為 75% . 運行過程中對 pH 不做控制,控制曝氣流量為 1. 50L·min - 1 ,運行溫度變化如表 1 所示.
表 1 反應器運行溫度

1. 2 水質與接種污泥![]()
接種污泥為北京市某污水處理廠二沉池回流污泥,MLSS 為3 518 mg·L - 1 . R1 進水為人工配水,碳源為丙酸鈉,COD 濃度為( 250 ± 30) mg·L - 1 ; 氮源為硫酸銨,NH + -N濃度為( 45 ± 5) mg·L - 1 、磷源為磷酸二氫鉀,TP 濃度為( 6. 50 ± 0. 50) mg·L - 1 ; R2進水為生活污水,取自北京工業大學家屬區化糞池的實際生活污水. 人工配水及生活污水主要水質組分見表 2.
表 2 人工配水和生活污水水質組分/ mg·L - 1

1. 3 分析項目及方法
NH + -N、 NO - -N、 NO - -N、 MLSS、 MLVSS、SV30 等指標均采用國家規定的標準方法測定 ;COD 和 TP 采用 5B-3B COD 多參數快速測定儀;pH、DO 及溫度的測定采用 WTW pH / Oxi340i 便攜式多參數測定儀; 污泥中 EPS 的提取采用熱提取法,多糖測定采用苯酚硫酸法,蛋白質測定采用考馬斯亮藍法; 顆粒粒徑測定采用 Mastersize 2000型激光粒度分析儀,顆粒形態觀察使用 HitachiS4300 電子顯微鏡; 顆粒化啟動成功分析方法:污泥顆粒平均粒徑大于 340 μm.
1 結果與討論
2. 1 不同水質條件對好氧顆粒污泥形成及形態結構的影響
R1、R2 分別以人工配水和實際生活污水為進水,接種污水處理廠普通絮狀活性污泥,采取逐漸縮短沉淀時間的方式培養好氧顆粒污泥. R1、R2分別在第 20 d、35 d 時,出現細小顆粒,如圖 2 所示,分別歷時 25 d、42 d 后,顆粒污泥的平均粒徑達到 340 μm,好氧顆粒污泥工藝啟動成功. 顆粒污泥穩定后,其平均粒徑分別達到1 200 μm、750μm. 有研究表明進水有機負荷是好氧顆粒污泥形成的重要影響因素,有機負荷較低,微生物生長速率減慢,不利于顆粒化. 人工配水中的有機物易被微生物吸收利用,而實際生活污水水質成分復雜,由易生物降解物質、慢速生物降解物質和溶解性惰性物質組成,其中,溶解性惰性物質包含不可生物降解的 COD 組分,生活污水中能被微生物利用的有機負荷較人工配水少,故 R2 相對R1 污

圖 2 R1 和 R2 運行期間粒徑變化
泥顆粒化時間較長.
分別在 5 ~ 16℃ 條件下( 第 70 d) 和 R1、R2 中顆粒性能和形態穩定( 第130 d) 時,對 R1、R2 中的好氧顆粒污泥進行顯微鏡觀察. 如圖 3 所示,在第 70 d,R1 內顆粒污泥表面存在大量絲狀菌,而 R2內顆粒污泥表面絲狀菌較少,分析原因為: 溫度較低( 5 ~ 16℃ ) ,R1 反應器內微生物可利用的有機負荷較高,絲狀菌膨脹,導致顆粒污泥解體,而實際生活污水成分復雜,其中的溶解性惰性物質包含不可生物降解的 COD 組分,微生物可利用的有機物較少,抑制了絲狀菌的生長,故 R2 反應器內的顆粒污泥系統能夠保持穩定; 實際生活污水水質成分復雜,含有多種微量元素,當外界環境變化時,實際生活污水培養成熟的好氧顆粒污泥表現出良好的抗沖擊能力,能夠抵御溫度降低帶來的不利影響. 顆粒形態穩定時( 第 130 d) ,R1 中好氧顆粒污泥粒徑較 R2 中大,分析原因為實際生活污水中微生物可利用的有機負荷較少,顆粒內部的濃度梯度較小,基質滲透力較小,有機物難以深入顆粒內部,限制了顆粒粒徑的增大.
胞外聚合物( EPS) 主要由蛋白質( PN) 和多糖 ( PS) 組成,在污泥顆粒化過程中具有重要作 用. 如圖4 所示,PN、PS 在顆粒污泥啟動階段 ( 0 ~ 25 d 和 0 ~ 42 d) 整體呈上升趨勢,R1、R2 內的 PN 含量( 以 MLSS 計) 分別由初始的 64. 12mg·g - 1 、65. 98 mg·g - 1 增 加 到 最 大 值 123. 65mg·g - 1 、122. 19 mg·g - 1 ,PS 含量分別由初始的26. 08 mg·g - 1 、26. 59 mg·g - 1 增加到最大值 64. 89mg·g - 1 、62. 13 mg·g - 1 . PS 越高,污泥表面親水性越強,PN 增加,污泥疏水性增強,細菌之間的黏附性能也隨之增加,有利于顆粒污泥的形成. R1 中微生物可利用的有機負荷較高,刺激微生物產生更多的EPS,故顆粒形成時間較短. 在實驗進行的第 57 ~ 78 d,由于室內溫度較低( 5 ~ 16℃ ) ,R1 中PN 含量減少至 51. 15 mg·g - 1 ,細胞表面的疏水性減弱,不利于微生物相互黏附,顆粒解體,而生活污水中含有一定的蛋白質,與顆粒污泥接觸時可被絮凝吸附,故 R2 中PN 含量受溫度影響較小.
進一步分析圖 4 可得,外界環境溫度降低,R1內的 PN/ PS 由 2. 25 降到 1. 14,有研究指出 PN/ PS

( a1) R1 和( a2) R2 為 70 d 的顯微鏡照片,( b1) R1 和( b2) R2 為 130 d 的顯微鏡照片圖 3 R1 和 R2 反應器中顆粒污泥的顯微鏡照片
對顆粒污泥穩定性有一定的影響,PN / PS 越大,顆粒污泥穩定性越好. 故溫度降低時,R1 反應器內顆粒污泥表面出現絲狀菌,顆粒的穩定性變差. 系統穩定之后,R1 和 R2 中顆粒污泥的 PN/ PS 分別平均為 1. 50 和 2. 00,生活污水培養成熟的顆粒污泥較穩定,利于長期穩定運行. 同時有研究指出PN/ PS 值正比于顆粒污泥的沉降性能. 生活污水培養的顆粒污泥 PN/ PS 值高于由配水培養的顆粒污泥,故生活污水培養的顆粒污泥的沉降性能優于由人工配水培養的顆粒污泥.

圖 4 R1 和 R2 反應器中 PN、PS 和 PN / PS 值的變化
2. 2 好氧顆粒污泥系統去除污染物性能
2. 2. 1 R1、R2 系統的 COD 及 TP 的去除性能
如圖 5 所示,R1 反應器在整個運行階段進水負荷較穩定,有機物能夠有效被微生物降解和吸收,COD 能夠得到有效去除,出水 COD 濃度均在 50 mg·L - 1 以下,COD 去除率達到 90% 以上. R2 反

圖 5 R1 和 R2 反應器去除 COD、TP、TN 和 NO - -N 的性能
應器在啟動期的前 20 d,污泥處于培養馴化階段,出水 COD 濃度在 50 mg·L - 1 以上,這是因為 R2 反應器的進水為實際生活污水,進水 COD 濃度波動較大且部分有機物不易被微生物降解,污泥適應反應器內環境需要的時間較長. 隨著反應運行,微生物逐漸適應進水水質條件,出水 COD 濃度降低到 50 mg·L - 1 以下.
運行到第 57 d 后,溫度開始降低,R1 反應器內的顆粒污泥出現絲狀菌膨脹,顆粒污泥解體的情況,雖然顆粒污泥受溫度影響出現解體的現象,但是 COD 仍然能夠得到有效去除,去除率保持在90% 以上,這是由于絲狀菌對有機物有良好的降解能力. 相比于 R1 反應器,R2 反應器中并沒有出現絲狀菌膨脹和顆粒污泥解體的情況,處理效果一直保持穩定,這說明生活污水啟動的顆粒污泥對于溫度的改變具有更強地適應能力,更好地穩定性.
R1、R2 系統在啟動初期的除磷能力較差,出水 TP 濃度在 1 mg·L - 1 以上,在系統運行 10 d 后,出水TP 濃度降低到0. 50 mg·L - 1 以下,去除率穩定在 90% 左右,此后,R1、R2 系統除磷能力均能穩定在較高水平,獲得了良好的除磷效果.
2. 2. 2 R1、R2 系統的脫氮性能
如圖 5 所示,R1 反應器從顆粒污泥啟動到顆粒成熟穩定時,脫氮性能良好,TN 平均去除率均保持較高水平,出水 TN 平均濃度均在 10 mg·L - 1以下. 但是當室內溫度較低時( 5 ~ 16℃ ) ,反硝化菌不適應低溫條件,活性受到抑制,導致系統脫氮性能 降 低, 出 水 TN 平均濃度升高至 29. 03mg·L - 1 ,平均去除率從 87. 85% 降低到 48. 81% .由于 R1 反應器中微生物可利用的有機負荷充足,且反硝化菌受溫度抑制,因此導致絲狀菌有所增殖,顆粒污泥膨脹. 溫度升高后,絲狀菌生長得到有效抑制,反硝化作用增強,出水 TN 平均濃度逐漸降低為 6. 13 mg·L - 1 ,去除率達到 90% 以上,脫氮性能得到恢復. 在啟動初期,R2 中污泥處于培養馴化階段,出水 TN 平均濃度為 19. 72 mg·L - 1 ,平均去除率為 60. 08% . 顆粒穩定后,R2 中好氧顆粒污泥系統出水 TN 平均濃度降低至 14. 55 mg·L - 1 ,去除率達到 79. 25% . 溫度降低時,出水 TN 濃度基本沒有變化,TN 去除率能夠達到 86. 28% . 溫度變化對 R2 反應器內的顆粒污泥并沒有明顯影響.
綜上所述,由于人工配水水質成分單一,培養

圖 6 R1 和 R2 反應器中典型周期( 128 d) 內各污染物濃度變化
成熟的好氧顆粒污泥抗沖擊性能較差,溫度降低至 5 ~ 16℃ 時,絲狀菌膨脹導致顆粒污泥解體,系統脫氮性能變差; 由于實際生活污水中有機物成分復雜且濃度波動大,微生物吸收利用緩慢,形成顆粒污泥需要的時間較長. Liu 等的研究表明,生長速率較慢的好氧顆粒污泥具有結構密實、穩定性好的優點,生活污水培養成熟的好氧顆粒污泥形成速度慢于人工配水培養的好氧顆粒污泥,因此具有更強的抗沖擊負荷能力,穩定性更強,在溫度降低時,能夠抵御環境變化帶來的影響,保持顆粒結構穩定,獲得良好的出水水質.
2. 2. 3 典型周期內污染物濃度變化
圖 6 為 R1、R2 在第 128 d 的一個典型周期內NH + -N、NO - -N、NO - -N、TN、COD、TP、溶解氧4 2 3( DO) 的濃度變化. 厭氧階段,R1、R2 反應器內的DO 濃度在 0. 02 mg·L - 1 以下,好氧階段,R1、R2中 DO 緩慢增加,最終穩定在 8 mg·L - 1 左右,反應器內具有良好的 A/ O 運行環境. R1 中 COD 濃度在厭氧階段下降較快,在前 30 min 已經基本消耗,COD 由 250 mg·L - 1 降至 25. 12 mg·L - 1 . R2 反應器進水為生活污水,在厭氧階段,由于有機物成分復雜,微生物可快速利用的有機碳源較少,所以降解速度較慢, COD 由 275. 19 mg·L - 1 降至 90. 44mg·L - 1 ; 在好氧階段,反硝化作用消耗有機碳源,COD 濃度逐漸降低至 24. 58 mg·L - 1 ,COD 得到去除. 在厭氧末期,R1 釋磷較多,反應器內的 TP 濃度為 35. 09 mg·L - 1 ,而 R2 反應器內的 TP 濃度為32. 18 mg·L - 1 . 導致釋磷量不同的主要原因為生活污水中含有慢速生物降解物質和溶解性惰性物質等不利于聚磷菌利用的有機物,在厭氧階段不能夠完全降解,降低了釋磷量. 在周期實驗出水中,R1、R2 出水均未檢測到NH + -N、NO - -N,出水NO - -N濃度分別為 5. 65 mg·L - 1 、9. 67 mg·L - 1 ,產生這種現象的原因為,穩定運行時,R1 中顆粒污泥粒徑較R2 大,由于好氧顆粒污泥內部存在一個“缺氧區”,粒徑越大,顆粒污泥內部的缺氧區越大,這為反硝化菌提供了良好的生存環境,提高了反硝化能力,因此 R1 反應器內NO - -N的出水效果更好.
3 結論
( 1) 以人工配水和實際生活污水為進水的兩組反應器分別歷時 25 d、42 d 啟動成功,顆粒污泥穩定后,平均粒徑分別可達 1200 μm 和 750 μm,R1、88. 59% 、79. 25% . 出水水質均滿足《城鎮污水處理廠污染物排放標準》一級 A 標準.
( 2) 溫度較低時( 5 ~ 16℃ ) ,R1 內顆粒污泥解體,COD 和TP 的去除能力基本不變,但出水 TN 平均濃度為 29. 03 mg·L - 1 ,平均去除率為 48. 81% ,系統脫氮性能被抑制; R2 運行穩定,出水 COD、TP、TN 平均濃度仍能達到《城鎮污水處理廠污染物排放標準》一級 A 標準. 生活污水培養成熟的好氧顆粒污泥結構密實,穩定性好,抗沖擊能力強.(來源:北京工業大學水質科學與水環境恢復工程北京市重點實驗室)
如需要產品及技術服務,請撥打服務熱線:13659219533
選擇陜西博泰達水處理科技有限公司,你永遠值得信賴的產品!
了解更多,請點擊www.slqxd.com